|
 |
|
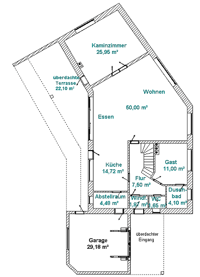
Windfang: |
ca.
1,87 m² |
|
Abstellraum: |
ca.
4,48 m² |
|
WC: |
ca.
1,65 m² |
|
Duschbad: |
ca.
4,10 m² |
|
Gast: |
ca.
11,00 m² |
|
Flur: |
ca.
7,50 m² |
|
Wohnen: |
ca.
50,00 m² |
|
Kaminzimmer: |
ca.
25,95 m² |
|
Küche: |
ca. 14,72 m² |
|
überdachte Terrasse (50%): |
ca. 11,05 m² |
|
Fläche EG Wohnen: |
ca.
132,32 m² |
|
Garage: |
ca. 29,18 m² |
|
Fläche EG Allgemein: |
ca. 29,18 m² |
|
Alle Angaben ohne
Gewähr!
|